-
-
-
-
-
-

·
Simons Sporthaus
Project Description: Visualize kit home at home-site. Provide concept for access; potential building modifications.
-
-

·
House 3
Project Description: House Rendering. Model and render house at different times of the day.
-

·
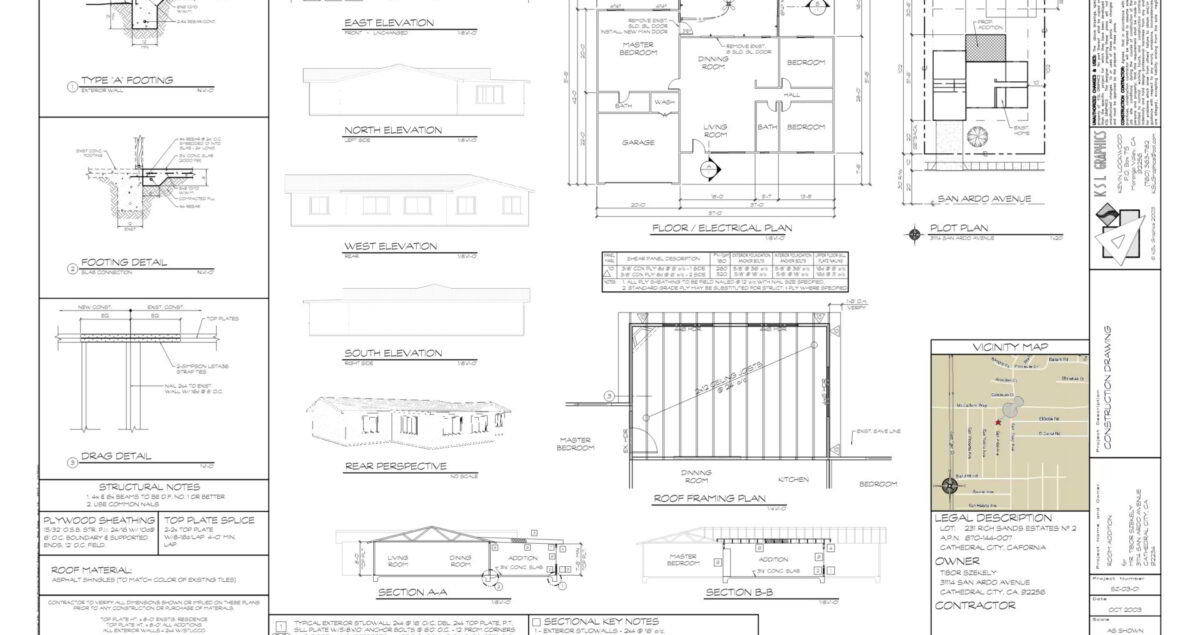
Sample Room Addition
Project: Szekely Room Addition Description: Design Room Addition for existing house. Draw and print plans for construction permit
-

·
Kitchen Addition & Remodel
Project: Kitchen Addition and RemodelDescription: Create drawings for permitting a kitchen remodel and addition. Drawing set includes Site, Floor, Elevation, Electrical, Plumbing plans, Details and notes. Renderings for client review






